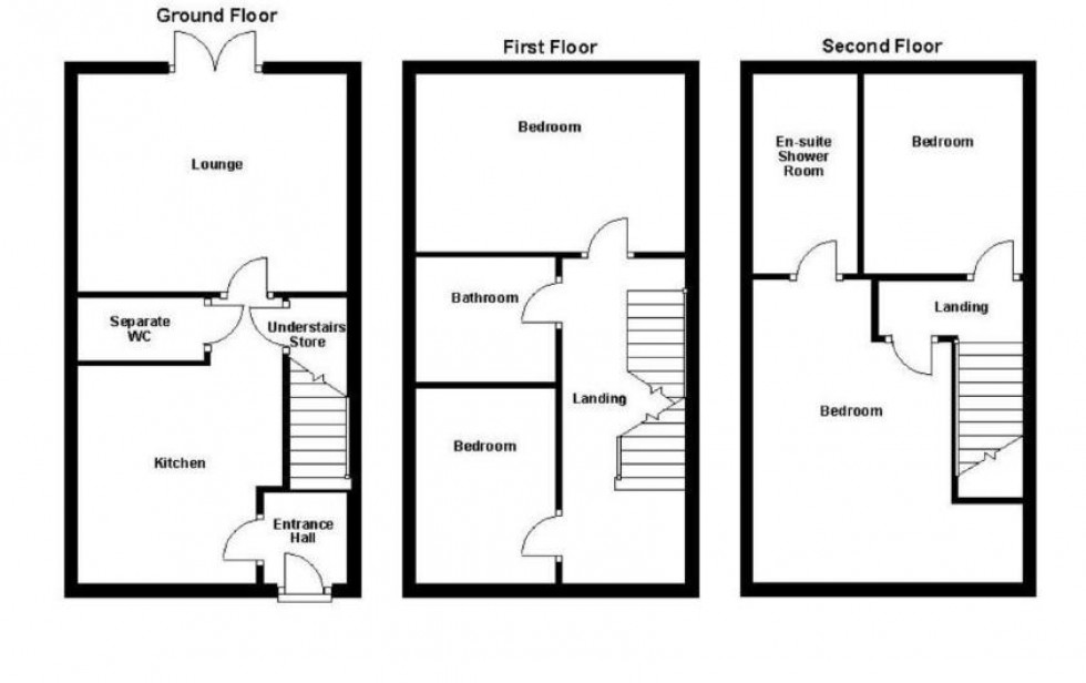
Available from End of January 2026!! - Open House Estate Agents is proud to bring this lovely and Modern Four Bedroom Townhouse Property to the rental market. This stonebuilt 3 level property has 4 bedrooms - 2 on the First Floor and 2 on the Top Floor, one of which has an En Suite Batroom. The property consists of : Grouind Floor - Lounge, Kitchen, Downstairs WC. First Floor, 2 Bedrooms, Family Bathroom. Second Floor - 2 Further Berooms, one of which has an Ensuite This property...
Available from End of January 2026!! - Open House Estate Agents is proud to bring this lovely and Modern Four Bedroom Townhouse Property to the rental market.
This stonebuilt 3 level property has 4 bedrooms - 2 on the First Floor and 2 on the Top Floor, one of which has an En Suite Batroom.
The property consists of : Grouind Floor - Lounge, Kitchen, Downstairs WC. First Floor, 2 Bedrooms, Family Bathroom. Second Floor - 2 Further Berooms, one of which has an Ensuite
This property will suit those who require all the local amenities of Crosland Moor, Good Local Schools and Transport Links, with easy access of routes to Brighouse or Huddersfield Centre, or onto the M62 links to Leeds & Manchester.
Tax Band C EPC Rating C
Call us now to arrange your viewing slot - our lines are open 24/7 to take your call!!