Mount Road, Newhaven, BN9

Sold Subject to Contract £325,000 Freehold

3 1 2
Located on the charming Mount Road in Newhaven, this superbly presented family home offers the perfect balance of comfort and practicality and with the added advantage of no ongoing chain, this property is ready for you to move in and make it your own.

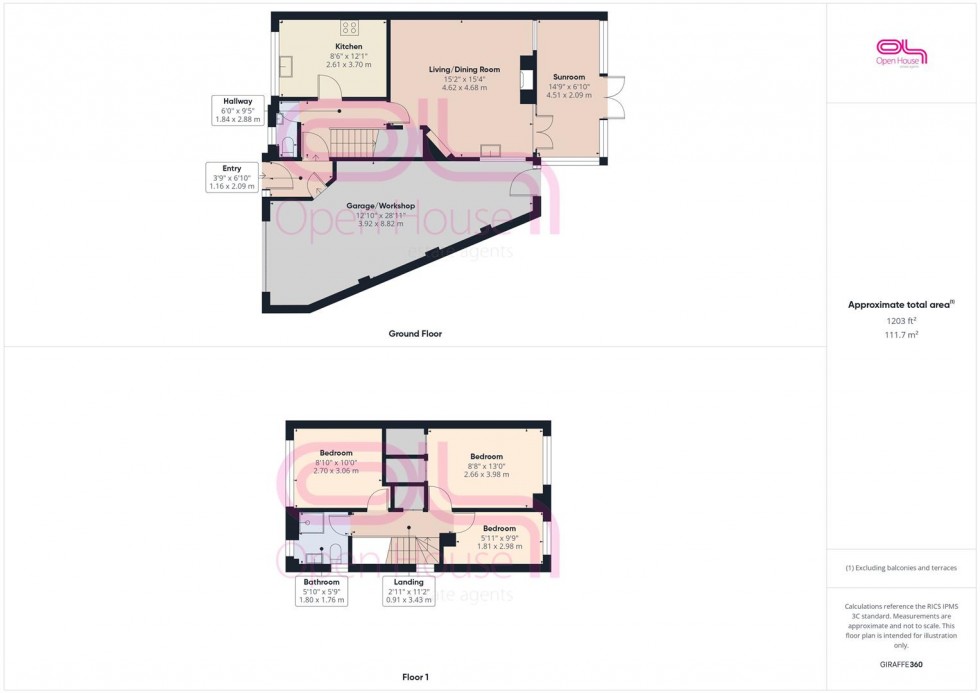
As you enter, you are welcomed into the light and bright entrance hall that flows seamlessly into the large living/dining room, perfect for both relaxation and entertaining. Close by is the well-appointed kitchen which is designed for functionality, making meal preparation a pleasure. A delightful sun room adds an extra touch of warmth and character, providing a lovely spot to admire the well stocked rear garden.

The property boasts three decent-sized bedrooms, two of which offer lovely open views, allowing you to enjoy the beauty of the surrounding area. A modern shower room completes the interior, ensuring convenience for the whole family.

Outside, the mature rear garden provides a tranquil retreat, ideal for gardening enthusiasts or those who simply wish to enjoy the outdoors. Additionally, the property features a huge garage/workshop, perfect for hobbies or extra storage. With ample off-road parking for up to three vehicles, this home caters to the needs of a busy family.

In summary, this charming house on Mount Road is a wonderful opportunity for those seeking a well-rounded family home in a desirable location. Don't miss your chance to view this exceptional property.

Living/Dining Room (4.67m x 4.62m)

Kitchen (3.68m x 2.59m)

Sun Room (4.50m x 2.08m)

Bedroom One (3.96m x 2.64m)

Bedroom Two (3.25m x 2.69m)

Bedroom Three (2.97m x 1.80m)

Shower room/wc (1.78m x 1.75m)

Garage/Workshop (8.81m x 3.91m)

  • Beautifully Maintained Family Home
  • Generous Living/Dining Room
  • Modern Kitchen with Appliances
  • Ground Floor wc
  • Three Good Size Bedrooms
  • Family Shower Room/wc
  • Mature Front and Rear Gardens
  • Huge Garage/Workshop
  • No Chain
Floorplan for Mount Road, Newhaven Floorplan for Mount Road, Newhaven Floorplan for Mount Road, Newhaven
EPC Graph for Mount Road, Newhaven

Get an instant online valuation

Find out how much your property is worth