Elegant Living with Exciting Potential in Liverpool’s Georgian Quarter This Grade II listed Georgian townhouse, built circa 1780, offers both charm and opportunity on prestigious Rodney Street. Retaining original features—including a striking cantilevered spiral staircase, mahogany doors, and marble fireplaces—the property is ready to be enjoyed as a family home while offering scope for improvement and expansion. Set across three floors plus basement, the accommodation includes a...
Elegant Living with Exciting Potential in Liverpool’s Georgian Quarter
This Grade II listed Georgian townhouse, built circa 1780, offers both charm and opportunity on prestigious Rodney Street. Retaining original features—including a striking cantilevered spiral staircase, mahogany doors, and marble fireplaces—the property is ready to be enjoyed as a family home while offering scope for improvement and expansion.
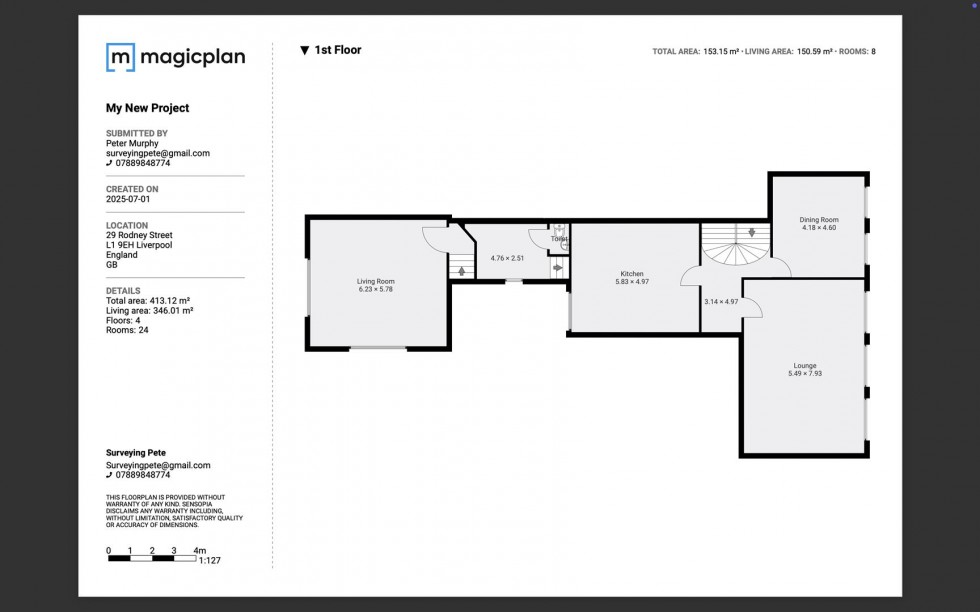
Set across three floors plus basement, the accommodation includes a magnificent first-floor drawing room and dining room spanning the full width of the house, a spacious kitchen/breakfast room, utility, and a versatile family/games room overlooking the garden. The second floor provides three generous bedrooms and a modern bathroom.
To the rear, a private walled garden leads to a substantial three-car garage with storage. The extensive basement, originally a self-contained apartment, also offers exciting possibilities. Together, these spaces provide development potential—whether to update electrical systems, extend living accommodation into the basement, or create a new dwelling above the garage (illustrative drawings attached).
This is an outstanding opportunity for those seeking a lifestyle home with scope to add value in one of Liverpool’s most historic and sought-after addresses. A detailed Property Report is attached with further information on layout and development opportunities.
Grade II listed Georgian townhouse (c.1780)
Flying Freehold
Large family/games room with potential for separate apartment
Cantilevered spiral staircase with mahogany handrail
Spacious kitchen/breakfast room plus utility
Main bathroom with cast iron bath & walk-in shower
2 separate W/C's in addition to the main family bathroom
Private garden with direct access to rear
Substantial 3-car garage with scope for apartment conversion
Extensive basement with options for extension or leisure use