Maybrook Gardens, High Wycombe, HP13

For Sale £350,000 Freehold

3 1 1
Beautiful three-bedroom end terrace home within walking distance to High Wycombe mainline train station and Eden shopping centre, offered to the market with no onward chain

Address: Maybrook Gardens, High Wycombe, HP13 6PJ

Key features

•Freehold
•No onward chain with vacant possession
•Property sold by auction through “secure sale” promotional offer by Open House Buckinghamshire Estate Agent in association with Pattinson Auction House
•Three-bedroom end terraced house
•Modern Kitchen
•South facing garden
•Large lounge / dining room
•Garage
•On-street parking
•Quiet cul-de-sac
•Walking distance to High Wycombe train station, theatre, and town centre
•Walking distance to Royal Grammar school and other local schools.
•EPC rating “D”
•Council Tax Band “D”
•Potential rental income £1600-£1650 pcm.

Description

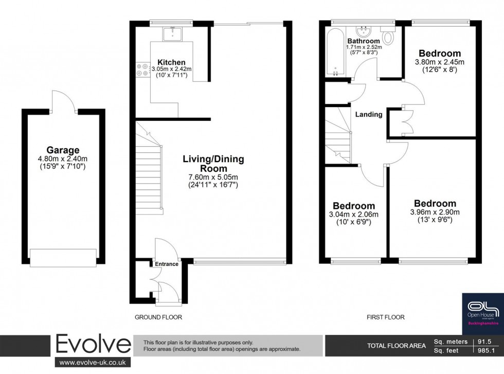
For sale is a charming three-bedroom end of terrace home located on a private road in the heart of High Wycombe. This delightful residence is being sold with no onward chain and is situated in a sought-after location off Amersham Hill within a short walk to the mainline High Wycombe train station, nearby Royal Grammar school (RGS) and Godstowe private school. The accommodation briefly consists of a porch, open plan living/dining room with an exposed featured brick wall, modern kitchen with gas hob, and patio doors to the rear garden.

Upstairs there are three carpeted bedrooms, a bathroom and boiler closet.
Externally, the property has a south facing rear garden area.
The property comes with an attached garage that is accessible through the rear garden as well as externally from the adjacent block of garages.

This property is centrally located in highly sought after grammar schools (Royal Grammar school, Wycombe High and John Hampden Grammar school are all in catchment) as well as private schools including Godstowe private school. High Wycombe train station is a short walk away with train connections to London (39 mins by fast train)

Open House Buckinghamshire Promotional Offer

This property is sold by auction through a “secure sale” promotional offer of Open House Buckinghamshire. Sell your property for free. Further details in the link below;

https://www.openhousebuckinghamshire.co.uk/auction

Estate Agents Notes and Additional Information

Directions and location of property:

From High Wycombe train station, ascend Amersham Hill towards Royal Grammar school (RGS) and turn right into Maybrook Gardens. The property is the last terraced property on right hand side. Maybrook Gardens is a cul-de-sac and offers a tranquil and secure setting.

The property is situated at a walking distance from High Wycombe Eden centre shopping centre, library, and Wycombe Swan theatre. For road users, there is an access to junctions 3 and 4 of M40, with M25 approximately eight miles away.

This end of terrace house represents a fantastic opportunity to purchase a welcoming family home in high demand area. Also, it has excellent potential for further improvement, allowing the next owner to put their own stamp on it.

Estate Agent Notes:

This property requires some renovation and modernization and is a 'must-view' for those seeking to find their dream home in the heart of High Wycombe.

Please review the basic terms and conditions listed prior to contacting us to book a viewing.

Auctioneer Comments

Pattinson Auctions are working in Partnership with the marketing agent (Open House Buckinghamshire) on this online auction sale and are referred to below as 'The Auctioneer'. This auction lot is being sold either under conditional (Modern) or unconditional (Traditional) auction terms and overseen by the auctioneer in partnership with the marketing agent.

The property is available to be viewed strictly by appointment only via the Marketing Agent or The Auctioneer (Pattinson Auctions). Bids can be made via the Marketing Agents or via The Auctioneers website.

Please be aware that any enquiry, bid or viewing of the subject property will require your details being shared between both any marketing agent and The Auctioneer in order that all matters can be dealt with effectively.

The property is being sold via a transparent online auction.
In order to submit a bid upon any property being marketed by The Auctioneer, all bidders/buyers will be required to adhere to a verification of identity process in accordance with Anti Money Laundering procedures. Bids can be submitted at any time and from anywhere.




Our verification process is in place to ensure that AML procedure is carried out in accordance with the law.
The advertised price is commonly referred to as a ‘Starting Bid’ or ‘Guide Price’ and is accompanied by a ‘Reserve Price’. The ‘Reserve Price’ is confidential to the seller and the auctioneer and will typically be within a range above or below 10% of the ‘Guide Price’ / ‘Starting Bid’.
These prices are subject to change.
An auction can be closed at any time with the auctioneer permitting for the property (the lot) to be sold prior to the end of the auction.
A Legal Pack associated with this particular property is available to view upon request and contains details relevant to the legal documentation enabling all interested parties to make an informed decision prior to bidding. The Legal Pack will also outline the buyers’ obligations and sellers’ commitments. It is strongly advised that you seek the counsel of a solicitor prior to proceeding with any property and/or Land Title purchase.

Auctioneers Additional Comments

In order to secure the property and ensure commitment from the seller, upon exchange of contracts the successful bidder will be expected to pay a non-refundable deposit equivalent to 5% of the purchase price of the property. The deposit will be a contribution to the purchase price. A non-refundable reservation fee of up to 6% inc VAT (subject to a minimum of £7,200 inc VAT) is also required to be paid upon agreement of sale. The Reservation Fee is in addition to the agreed purchase price and consideration should be made by the purchaser in relation to any Stamp Duty Land Tax liability associated with overall purchase costs.

Both the Marketing Agent and The Auctioneer may believe necessary or beneficial to the customer to pass their details to third party service suppliers, from which a referral fee may be obtained. There is no requirement or indeed obligation to use these recommended suppliers or services.

  • An Open House Buckinghamshire property for sale - sale by Auction.
Floorplan for Maybrook Gardens, High Wycombe Floorplan for Maybrook Gardens, High Wycombe
EPC Graph for Maybrook Gardens, High Wycombe

Get an instant online valuation

Find out how much your property is worth