Horsfrith Park Cottages, Radley Green, CM4

For Sale £555,000 Freehold

3 2 1
Open House Estate Agents are delighted to present this rarely available, character-filled three-bedroom period cottage, nestled on a generous plot in a sought-after semi-rural Essex location. Brimming with original features and thoughtfully extended, this charming home offers a seamless blend of traditional warmth and modern convenience.

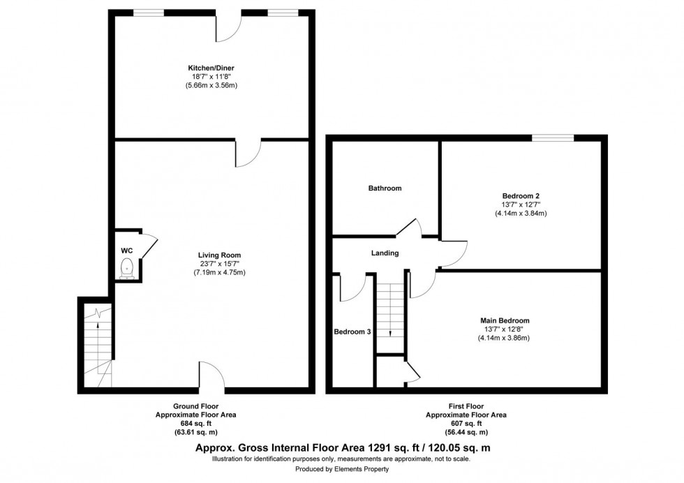
Ground Floor Highlights Step into a spacious 23'7 x 15'7 lounge with dual aspect windows, a working feature fireplace, and a welcoming ambience. The newly fitted 18'7 x 11'8 kitchen is the heart of the home, boasting exposed wooden beams, stylish lighting, integrated Lamona appliances, and a sociable dining area with patio doors opening onto the expansive rear garden. A downstairs cloakroom adds practicality.

Bedrooms & Bathroom Upstairs, you'll find two generously sized double bedrooms with new carpets and countryside views. The family bathroom features a bath, a corner shower, and modern fittings. A staircase leads to the third bedroom in the loft, complete with Velux windows and a cosy feel.

Outdoor Space & Lodge The 150-foot rear garden is a true retreat, with a shingle patio, lawn, brick-built BBQ area, and a 16' x 16' wooden lodge—fully equipped with electricity, water, heating, and its own cloakroom—ideal for guests, a home office, or studio.

Parking & Garaging To the front, double wooden gates open to a vast gravel driveway with parking for 8–9 vehicles, a double garage with an electric roller shutter, and side access to the rear garden. An electric connection box is installed for future gate automation.

Location Perks Enjoy stunning farmland views and easy access to Chelmsford and Chipping Ongar (just a 10-minute drive), with their array of shops, restaurants, and bars. The property is a short stroll from The Cuckoo and The Fox and Goose gastro pubs—perfect for year-round walks. Families will appreciate proximity to The Anglo European School and The New Ongar Academy.

Viewing Highly Recommended

Front Garden

Large wooden gates (electric connection box installed) leading to a gravel drive with parking for 8/9 vehicles, outside lighting, double garage with light, power and electric roller shutters, side access gate to rear garden.

.

Door into Lounge 23’7 x 15’7
Two ceiling lights, double glazed window to front, double glazed window to side, working feature fire place with wooden surround, Two radiators.

Down stairs cloakroom
Ceiling light, extractor fan, WC, hand wash basin.

Kitchen 18’7 x 11’8
A lovely new kitchen, with wooden ceiling beams, three drop style lantern lights, One drop ceiling style light, Double glazed double patio doors to garden, Two double glazed windows with blinds to rear garden, Ample wall units, built in Lamona oven, built in Lamona microwave, built in dish washer, built in hob and overhead extractor, work tops with sink, splash backs, breakfast bar and seating area, dining area.

Entrance

Large brick built porch, outside lighting. Double glazed composite door, ceiling light, coat hanging.

Lounge (7.19 x 4.75)

Two ceiling lights, double glazed window to front, double glazed window to side, working feature fire place with wooden surround, Two radiators

Kitchen (5.66 x 3.56)

A modern kitchen with breakfast bar and seated dining area. Stylish wooden ceiling beams, three drop style lantern lights, drop ceiling style light, Double glazed double patio doors to garden, Two double glazed windows with blinds to rear garden, Ample wall units, fully integrated appliances including Lamona oven and microwave, dish washer, hob with overhead extractor, work tops, sink, splash backs,

Cloakroom

Ceiling light, extractor fan, WC, hand wash basin.

Landing

Carpeted stairs up to first floor landing. Ceiling light, Double glazed window to side, radiator.

Master Bedroom (4.14 x 3.86)

Ceiling light, double glazed window to front, radiator, new carpet.

Bedroom Two (4.14 x 3.84)

Ceiling light, double glazed window to rear, radiator, and new carpet.

Family Bathroom

Smooth ceiling, down lighting, double glazed obscure window to rear, bath, corner shower unit, WC, Hand wash basin.

Bedroom Three (4.39 x 3.48)

Two spot lights, restricted head height, Two Velux roof windows, radiator, and new carpet

Rear Garden

Sunny rear garden, outside lighting, shingle and gravel patio area, lawn, wooden fencing, outside brick built barbecue area next to wooden lodge, side access gate to front of property

Summer House (4.88 x)

A large summer house with electric consumer unit and mains water installed, outside lighting, double patio doors and windows, heating and new carpet, door to cloakroom with lighting, extractor fan. WC and hand wash basin.

  • A LOVELY THREE BEDROOM CHARACTER PROPERTY IN A SEMI RURAL POSITION
  • LOCATED ON A VERY LARGE PLOT WITH POTENTIAL TO EXTEND SIDE AND REAR (SUBJECT TO NORMAL PLANNING)
  • BENEFITING FROM A LARGE LOUNGE AND DOWN STAIRS CLOAKROOM
  • MODERN CONTEMPORARY KITCHEN WITH DINING AREA
  • A VERY BIG SUNNY GARDEN WITH SIDE ACCESS
  • LARGE LOG CABIN WITH CLOAKROOM ELECTRICS AND WATER
  • WOODEN GATES LEADING TO PRIVATE OFF STREET PARKING FOR 8/9 VEHICLES
  • DOUBLE GARAGE WITH ELECTRIC INSTALLED
  • LOCATED CLOSE TO GASTRO PUBS/RESTUARANTS
  • EARLY INTERNAL VIEWING OF THIS CHARACTER PROPERTY HIGHLY RECOMMENDED
Floorplan for Horsfrith Park Cottages, Radley Green
EPC Graph for Horsfrith Park Cottages, Radley Green

Get an instant online valuation

Find out how much your property is worth