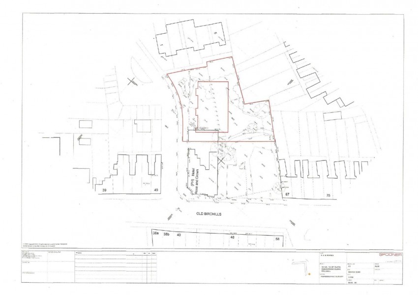
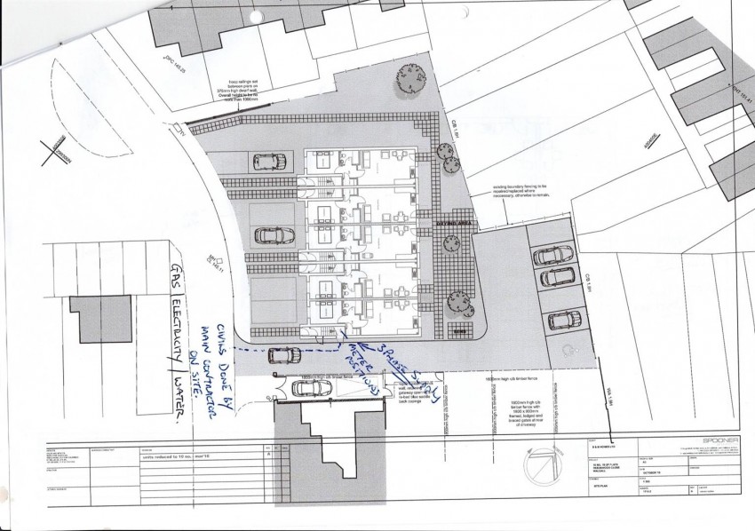
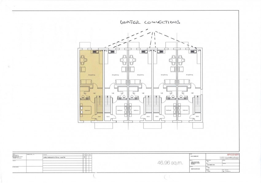
*LAND*FULL PLANNING PERMISSION*TEN ONE-BEDROOM APARTMENTS*ONE PARKING SPOT EACH* We're delighted to present this rare opportunity to purchase this land for 10 1-bedroom apartments each with their own parking space in a great location of Reedswood Close. Fantastic opportunity! Call now for any more queries or to book in a viewing.
We're delighted to present this rare opportunity to purchase this land for 10 1-bedroom apartments each with their own parking space in a great location of Reedswood Close.
Fantastic opportunity! Call now for any more queries or to book in a viewing.