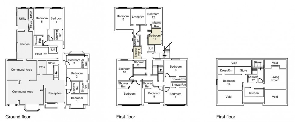
Why not add to the history of this amazing building and plot. This property has been a hotel and care home as well as a residential home. A magnificent amount of property and surrounding grounds to play with. The current owner has potential plans for converting to two magnificent semi-detached houses or alternatively around 15 self-contained flats. This will seriously get your creative juices flowing as there is so much potential. Planning has previously been passed by Wirral Council so...
Why not add to the history of this amazing building and plot. This property has been a hotel and care home as well as a residential home.
A magnificent amount of property and surrounding grounds to play with. The current owner has potential plans for converting to two magnificent semi-detached houses or alternatively around 15 self-contained flats.
This will seriously get your creative juices flowing as there is so much potential.
Planning has previously been passed by Wirral Council so there should be few issues in ensuring your dream scheme comes to fruition.
You really need to visit the site to truly appreciate the scale of the building and plot that you will have to work with.